Istvánmező
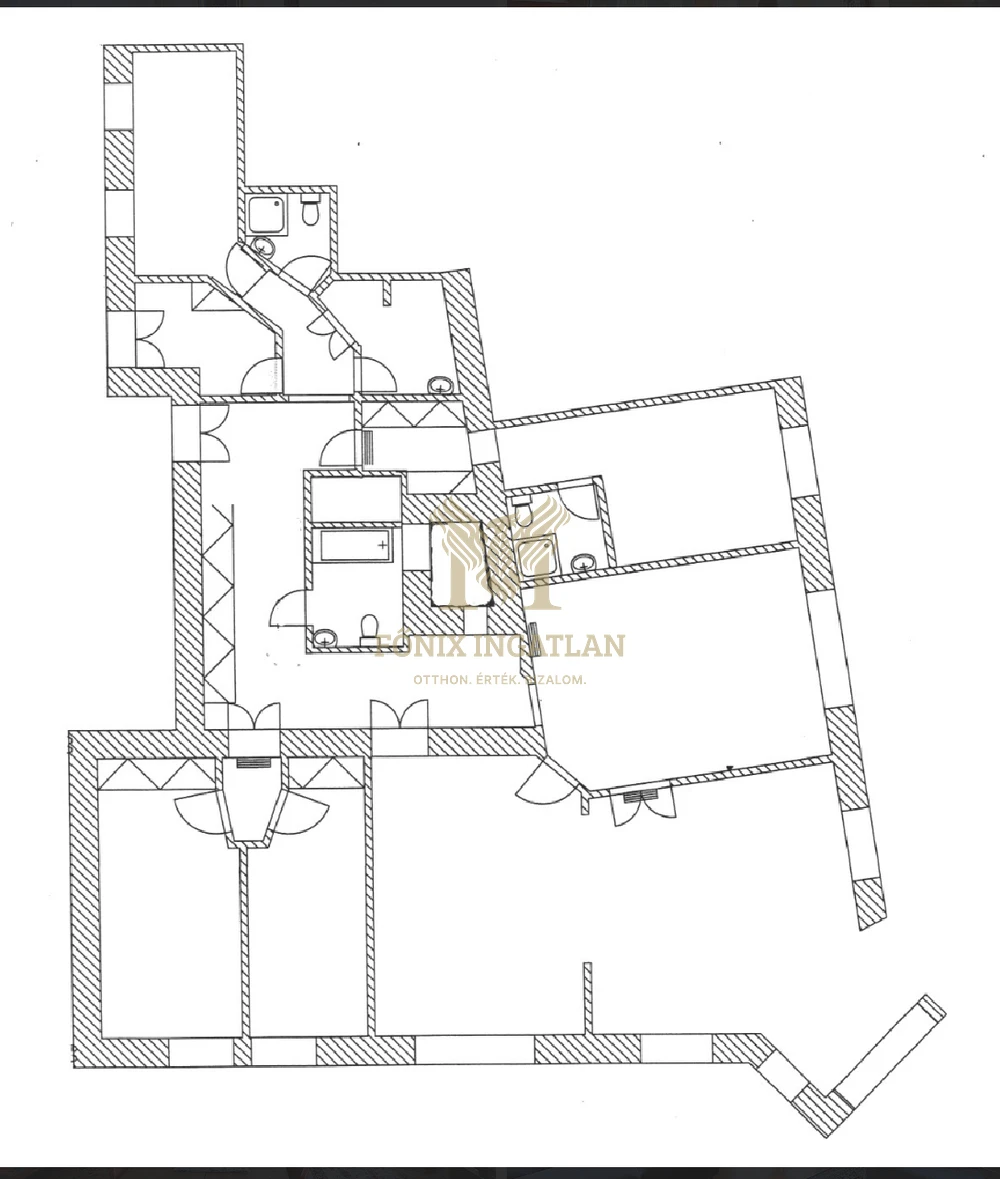
210 m2
4 rooms
Brick
269,9 million HUF
Contact the salesperson
Property ID: 705100272
Property Details
Property type
Brick Apartment
Air conditioning
Own split air conditioning
Property condition
Good
Year built
1900
Bath and WC
3
Comfort level
Double comfort
Floor
3
View
Partial Panorama
Number of building floors
5
Parking
Paid street parking
Elevator
Yes
Furnished
Partly furnished
Sustainability
Heating
Circulating heating
Water
Has own water meter
Electricity
Connected (230 Volt)
Common cost
30000
Description
You may also be interested
Eladó Téglalakás, 210 m2, Budapest, XIV. kerület
269 900 000 Ft

Property Details
| Serial number: | #705100272 |
| Rooms: | 4 |
| Construction method: | Brick |
| Inner condition: | Good |
| Outer condition: | Under renovation |
| Heating: | Circulating heating |
| Year built: | 1900 |
| Year of renovation: | Folyamatban |
| View: | Partial Panorama |
| Komfort: | Double comfort |
| Electricity: | Connected (230 Volt) |
| Water: | Has own water meter |
| Gas: | Natural Gas |
| Sewer: | Connected to Utilities |
| Parking: | Paid street parking |
| Furnished: | Partly furnished |
Your contact person:

Kiss Luca
+36 20 287-2443
kiss.luca@fonix-ingatlan.hu











