Újépítésű LUXUS OTTHONOK Soroksár-Apostolhegyen
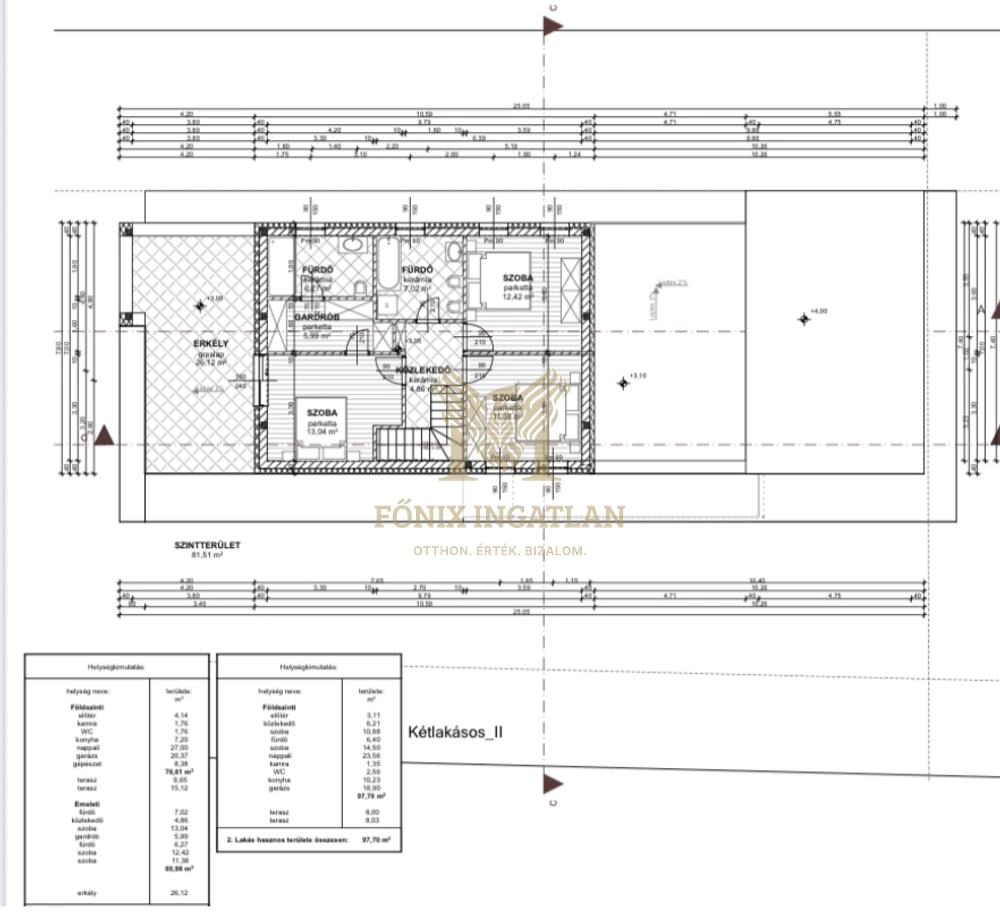
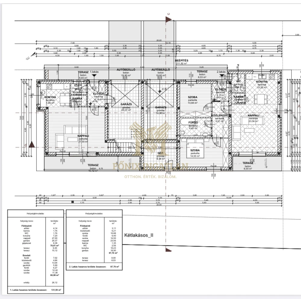
106 m2
4 szoba
Tégla
136 millió Ft
Lépj kapcsolatba az értékesítővel
Ingatlan azonosítója: 705100324
Ingatlan adatai
Ingatlan típusa
Ikerház
Ingatlan állapota
Új építésű
Építés éve
2025
Fürdő és WC
1
Komfortfokozat
Luxus
Kilátás
Udvari
Épület szintjei
2
Parkolás
Garázsban
Fenntarthatóság
Fűtés
Hőszivattyú
Víz
Van, saját vízórával
Villany
Bevezetve (230 Volt)
Leírás
Eladó IKERVILLÁK Soroksár-Apostolhegyen, csendes, kis forgalmú utcában.
Az ingatlanok teljesen ÚJ ÉPÍTÉSŰek, magas színvonalon felszereltek.
Ez is érdekelhet
Eladó Ikerház, 106 m2, Budapest, XXIII. kerület
136 000 000 Ft

Ingatlan adatai
Adatlap sorszáma: | #705100324 |
Szobák: | 4 |
Építési mód: | Tégla |
Belső állapot: | Új építésű |
Külső állapot: | Kiváló |
Fűtés: | Hőszivattyú |
Építés éve: | 2025 |
Kilátás: | Udvari |
Komfort: | Luxus |
Villany: | Bevezetve (230 Volt) |
Víz: | Van, saját vízórával |
Parkolás: | Garázsban |
Az Ön kapcsolattartója:

Kiss Luca
+36 20 287-2443
kiss.luca@fonix-ingatlan.hu