Gyógytó környéke
Eladó üzlethelyiség Hévíz sétálóutcájában!
94 m2
1 szoba
Tégla
89,9 millió Ft
Lépj kapcsolatba az értékesítővel
Ingatlan azonosítója: 705100187
Ingatlan adatai
Ingatlan típusa
Üzlethelyiség
Légkondícionáló
Saját split klíma
Ingatlan állapota
Kiváló
Akadálymentesített
Részben akadálymentesített
Fürdő és WC
1
Komfortfokozat
Összkomfort
Kilátás
Utcára
Épület szintjei
1
Parkolás
Nincs
Bútorozottság
Bútorozatlan
Fenntarthatóság
Fűtés
Kondenzációs kazán
Víz
Van, saját vízórával
Villany
Bevezetve (230 Volt)
Leírás
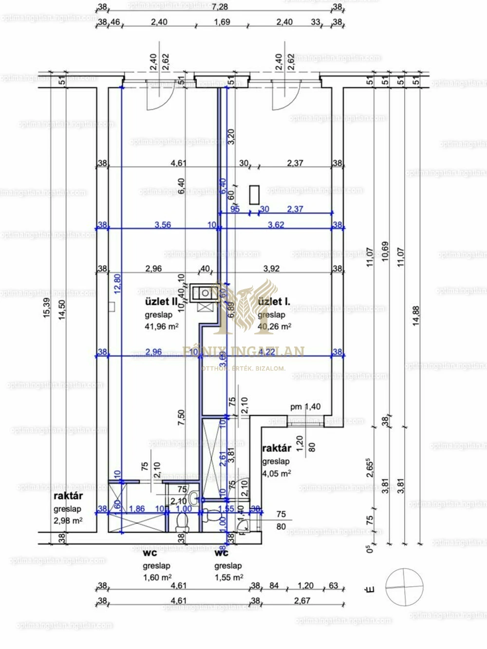
Újszerű üzlethelyiség Hévíz központjában – Kiváló befektetési lehetőség!
Hévíz legfrekventáltabb részén, a sétálóutca közepén kínálunk eladásra egy modern, földszinti, 94 m²-es üzlethelyiséget, amely közvetlen utcafronti, dupla kirakatos bejárattal rendelkezik. A maximális kihasználhatóság érdekében az ingatlan 2024 nyarán teljeskörű átalakításon esett át, amelynek során két különálló üzlethelyiségre lett osztva.
Ez is érdekelhet
Modern luxuslakás Hévíz szívében – Befektetésre és otthonnak is tökéletes!
Gyógytó környéke Téglalakás
92,9 M Ft
Eladó Üzlethelyiség, 94 m2, Hévíz
89 900 000 Ft

Ingatlan adatai
| Adatlap sorszáma: | #705100187 |
| Szobák: | 1 |
| Építési mód: | Tégla |
| Belső állapot: | Kiváló |
| Külső állapot: | Kiváló |
| Fűtés: | Kondenzációs kazán |
| Felújítás éve: | 2024 |
| Kilátás: | Utcára |
| Komfort: | Összkomfort |
| Villany: | Bevezetve (230 Volt) |
| Víz: | Van, saját vízórával |
| Gáz: | Vezetékes gáz |
| Csatorna: | Közműhálózatba bekötve |
| Parkolás: | Nincs |
| Bútorozottság: | Bútorozatlan |
Az Ön kapcsolattartója:

Kiss Luca
+36 20 287-2443
kiss.luca@fonix-ingatlan.hu











